-
LanguageEnglish 繁體中文
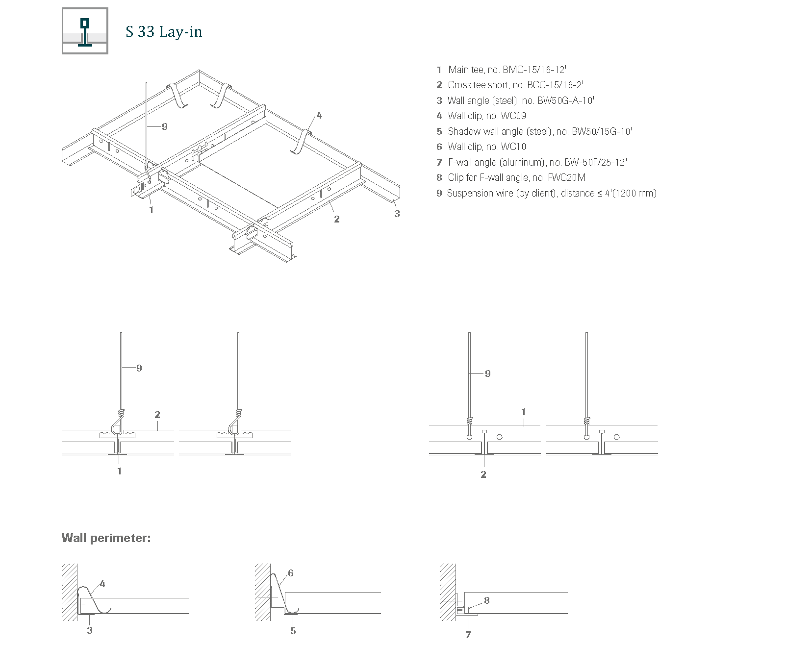
The lay in ceiling is mainly hanged by a special T-shaped keel. The “main runner” and “cross tee” of T-shaped are interlocked closely. The upper keel is sustained by 50C light steel keels to form the entire hanging system. The lines of this flat ceiling system is obvious. The independent installation of each ceiling does not affect each other. It is convenient for clients with quick installation and disabled to maintain in the future.
This system can be applied to any building space, such as office buildings, airports, stations, hospitals, schools and other types of buildings; the square ceiling system is equipped with special additional components, which can be installed with lighting and air conditioning ventilation equipment; The ceiling panel with air-holes could also be built-in sound-absorbing cloth or sound-insulated cotton to create a beautiful and functional office environment.
| Product No. | Material | Thickness | Specification |
|---|---|---|---|
| S 33 Lay-in | Steel/Aluminium | 0.5/0.5 | 600×600,625×625 |


