Close

Availability: In stock

Model number: metal-05

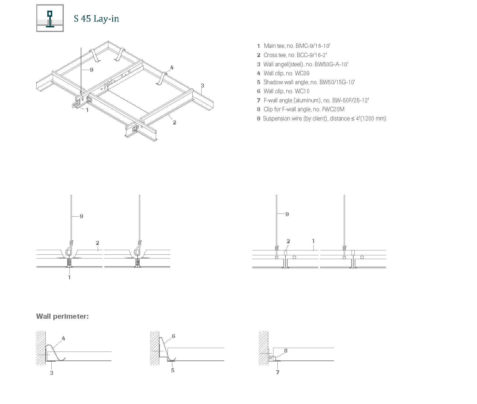
S45 Lay-in is tiled or overlapped on the standard T-grid, which greatly shortens the construction time. Simple installation and disassembly are convenient for changing different styles at any time, which also brings great convenience to future maintenance.

The product is made of double-sided hot zinc steel with good rust-proof properties. 

Lay-in suspension system is equipped with special additional components, which can be used in lighting fixtures and space ventilation equipment; at the same time, the perforated ceiling panel can be selected with built-in sound-absorbing cloth or sound insulation cotton to create a perfect indoor acoustic environment. 
Use different sizes, specifications and colors to tile or use different methods of high and low levels to highlight the decorative effect of the ceiling, so that the overall ceiling system design is beautiful and concise, and can be used in office buildings, airports, stations, hospitals, schools and other types in the building space.
Product No. Material Thickness Specification
S 45 Lay-in Steel/Aluminium 0.5/0.8 600×600,625×625
S 45 Lay-in
S 45 Lay-in