Close

Availability: In stock

Model number: metal-07

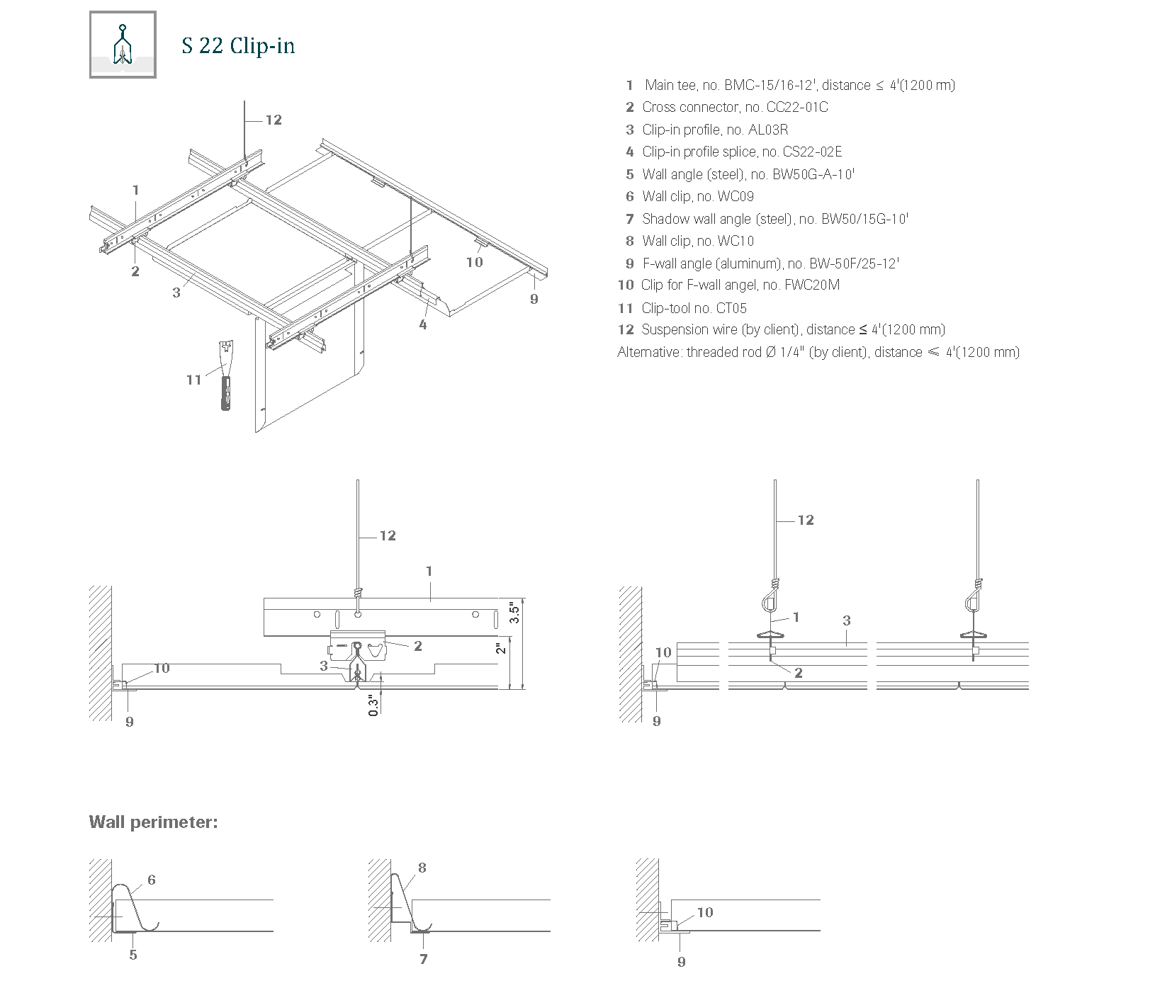
The clip in system is mainly composed of A keel. It can be used with light steel keel or can be hanged independently. It can be sturdy with butterfly clip or A-shaped keel hanging with upper keel. The grid, the ceiling can be independently interlocked with the A-shaped keel, the different ceilings are used to assemble the ceiling pattern with different effects, the rich design options, the imaginary color conversion, the decorative effect of the ceiling, the closed type Ceiling system design, simple design, beautiful, generous.

The ceiling is composed of steel or aluminum, which can be punched, filled with sound absorption, heat insulation, flame retardant materials, etc. Each ceiling is individually clamped, and the special cuffed card is matched with the A-shaped keel to make the ceiling to fasten, seam, and to be closely more.

This system can be applied to any building space, such as office buildings, airports, stations, hospitals, schools and other types of buildings; the ceiling system is equipped with special additional components, which can be installed with lighting and air conditioning ventilation equipment; At the same time, you can choose the built-in sound-absorbing cloth or sound-insulated cotton for the punched ceiling panel to create a perfect indoor acoustic environment.
Product No. Material Thickness Specification
S 22 Clip-in Steel/Aluminium 0.6/0.8 600×600,625×625
S 22 Clip-in
S 22 Clip-in